Description
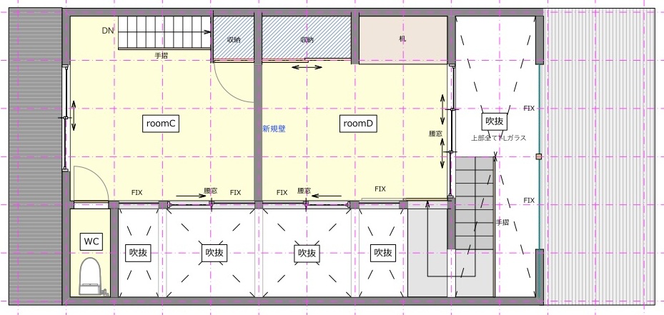
This is a machiya house located in Obagawa-cho, Otsu City, Shiga Prefecture. The building is a two-story row house, with renovations completed in September 2025. The roof tiles have been inspected for leaks, and termite inspection has been completed. Both sides of the walls and the roof are insulated, and the floors have been newly poured concrete. The water supply, sewerage, electrical wiring, and gas piping have all been newly installed. The first floor features a brand-new custom kitchen with a wide countertop that’s a must-see. There are toilets on both the first and second floors, and the first-floor washbasin has the rare feature of two sinks. The bathtub is also new and offers a view of the garden. Air conditioners are installed in each room on the second floor, and a large unit is installed in the living-dining area on the first floor. The most notable features are the second-floor double-height ceiling and the first-floor earthen floor design. The earthen floor features movable shelving, perfect for hobbies. You can park your motorcycle here upon returning home, or use it as a play area for small children. The townhouse-style double-height ceiling creates an unexpectedly spacious feel for a row house.
A specially installed glass window faces south, operable with a roll-up screen.
With excellent access to Kyoto, this property is ideal as a second home or for those relocating to Shiga Prefecture.
Measured building size: 91.53sqm (1F: 61.56sqm 2F: 29.97sqm)
Building size on registry: 72.71sqm (1F: 43.63sqm 2F: 27.43sqm Annex: 1.65sqm)































































