Description
Renovated Kyo-Machiya in a Quiet Kyoto Alley – 6-Minute Walk from Subway Gojo Station
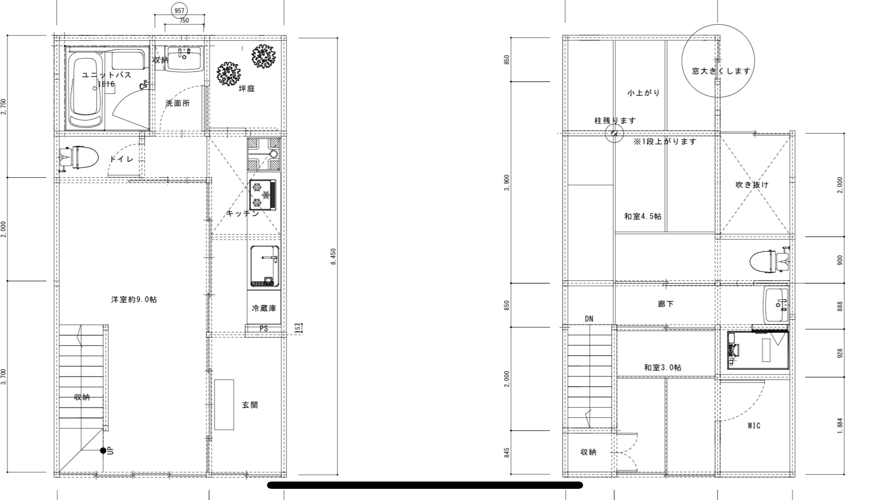
Experience the charm of traditional Kyoto living in this beautifully renovated two-story Kyo-Machiya, tucked away in a peaceful alley just a 6-minute walk from Subway Gojo Station.
Located in the heart of Kyoto, this historic townhouse offers the perfect blend of classic design and modern comfort. With Higashihonganji Temple and Nishihonganji Temple both within walking distance, you’ll be surrounded by Kyoto’s rich cultural heritage.
Property Highlights:
-
Fully renovated traditional Kyo-Machiya
-
Two-story layout with authentic architectural details
-
Quiet and private alley setting
-
Convenient access to public transportation (6-minute walk to Gojo Station)
-
Walking distance to major cultural landmarks
- Bathroom on 1F and shower room on 2F
- Toilet on each floor
This is a rare opportunity to own a piece of Kyoto history, ideal for a private residence, vacation home, or investment property.
Contact us today to arrange a private viewing.
*On Non-rebuilding land
*Private passage: 2.88㎡ + Private street share: 12.60㎡
*Partial boundary encroachment onto adjacent properties
*Land area: 53.34㎡ (Lot number: 523-5) and 2.88㎡ (523-11)
*Measured building area: 66.04㎡(1F 34.46㎡ 2F 31.58㎡)
*Price Changed on 16th March, from 49.80M yen to 47.80M yen



















































