Description
Similar Listings
Apartment with Gion and Kenninji temple View...
¥ 198M
Independent room with a view of Kenninji Temple and the Gion area in front of you. The roo ...
Condo Apartment Cosmo Higashiyama, for Sale ...
¥ 55.8M
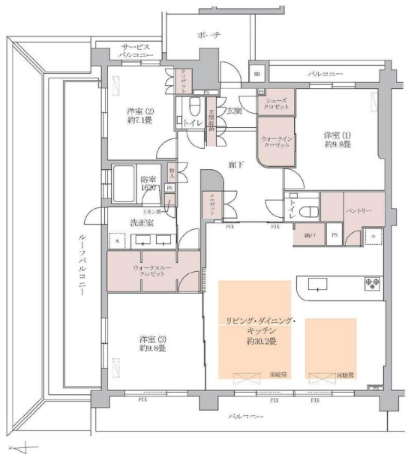
Cosmo Higashiyama – 7th Floor (Top Floor)Northwest Corner Unit with Dual Balconies A rare ...



