Description
Non-Renovated Kyo-Machiya in Shichiku, Kita Ward
A Tranquil Retreat Hidden in a Quiet Alley
Tucked away beyond the bustle of the main street, this property lies at the end of a narrow alley, offering a serene and atmospheric setting unique to traditional Kyoto living. Thisi property stands in the alley where the charm of a classic Kyoto machiya can truly be appreciated.
Despite its quiet location, the property is highly convenient—just about a 1-minute walk to the Kyoto City Bus stop “Shimomidori,” located along Kitayama Street, offering both accessibility and a calm, relaxed lifestyle.
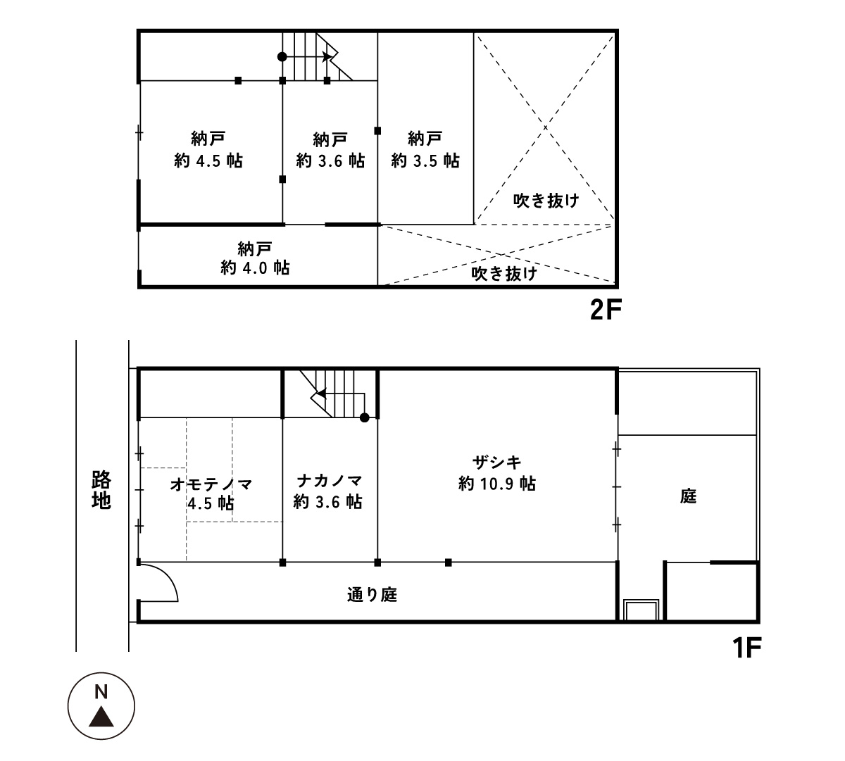
Flexible Layout with Authentic Machiya Features
This non-renovated machiya retains many traditional elements, offering excellent potential for customization. With generous ceiling height and spacious interiors, the property allows for a wide range of renovation possibilities.
Natural light enters from the eastern openings, making it ideal for designs that emphasize openness and brightness. Renovation ideas could include creating an airy space utilizing the high ceilings, or preserving and enhancing classic features such as:
- The traditional front façade
- Exposed “Goronbo” beams running across the ceiling
- A characteristic tooriniwa—a traditional passageway-style corridor often incorporating the kitchen—extends deep into the house.
These elements provide an opportunity to create a truly authentic Kyoto residence.
A Livable Area Close to Nature and Local Culture
Located slightly away from the city center, this area offers a comfortable living environment surrounded by natural beauty, including the nearby Kamo River and the Kyoto Botanical Gardens.
Within walking distance is the Shin-Omiya Shopping Street, lined with stylish cafés and unique local shops, offering a glimpse into everyday Kyoto life. For added convenience, Aeon Mall Kitaoji—home to stores such as UNIQLO, MUJI, Nitori, and a supermarket—is also within easy reach, making daily shopping effortless.
Additionally, Omiya Transportation Park, reopened in April 2021, hosts family-friendly events such as handmade markets, flea markets, and children’s bicycle safety activities, making it a great place for parents and children to enjoy together.
A rare opportunity to transform a traditional Kyoto machiya into your ideal living space.
Floor plan: 3 bedrooms + kitchen + storage rooms + garden
Notes:
- On Non-rebuildin land (This property does not meet the road access requirements under the Building Standards Act.)
- The building shows signs of age and may require some repairs before use.
- The property will be sold in its current condition (“as-is”).
- The property is currently under application for Kyo-Machiya profile designation.
- Non-registed extension available
- The year of construction is unknown (Records indicate it was relocated in 1938).





























